(Προς Πώληση) Επαγγελματικός Χώρος Λοιπές κατηγορίες || Αθήνα Νότια/Άγιος Δημήτριος - 1.160 τ.μ, 2.150.000€

Χαρακτηριστικά

Περιοχή: Άγιος Δημήτριος (Δ. Αγ. Δημητρίου)
Υποπεριοχή: Εθνικής Αντιστάσεως
Τιμή: 2.150.000€
Εμβαδόν m2: 1160
Κατηγορία: Επαγγελματικά
Τύπος: Λοιπές κατηγορίες
Κατάσταση:
Τιμή/τ.μ.: 1.853€
Γραφεία:
Μπάνια:
Όροφος: Ισόγειο
Έτος Κατασκευής: 1984
Τ.μ. Οικοπέδου: 567
Θέα:
Parkings 6
Θέρμανση:
Επίπεδα: 3
Κωδικός 1861928
 

Επιπλέον Χαρακτηριστικά

Διαμπερές Γωνιακό Ράμπα Εκφόρτωσης Metro
 

Περιγραφή

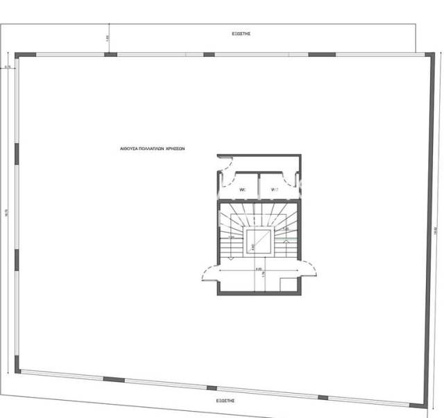
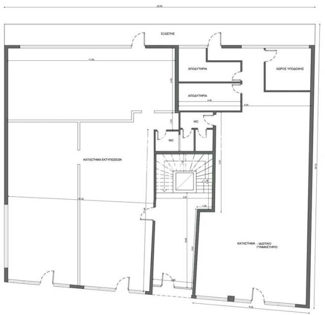
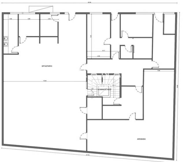
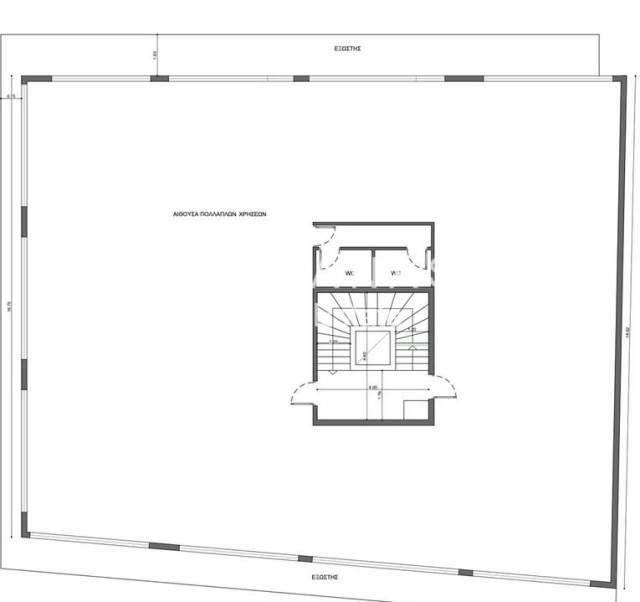
Προς Πώληση Λοιπές κατηγορίες, Άγιος Δημήτριος, Εθνικής Αντιστάσεως, 1.160 τ.μ., Ισόγειο: 387 τ.μ., Υπόγειο: 387 τ.μ., Σε οικόπεδο 567 τ.μ., 3 Επίπεδο/α, Ισόγειο Όροφος, 6 parking, Έτος κατασκευής: 1984, Ενεργειακό Πιστοποιητικό: Δεν απαιτείται , Χαρακτηριστικά: Ράμπα Εκφόρτωσης, Metro, Επενδυτικό, Διαμπερές, Γωνιακό, Πώληση Κτιρίου Επαγγελματικών Χώρων 1.160 τ.μ. — Άγιος Δημήτριος, Γωνιακό, διαμπερές κτίριο επαγγελματικών χώρων συνολικής επιφάνειας 1.160 τ.μ. σε οικόπεδο 567 τ.μ.. Αποτελείται από 3 επίπεδα, Ημιυπόγειο ~387 τ.μ. (λόγω κλίσης οικοπέδου έχει πρόσβαση ισογείου), Ισόγειο ~387 τ.μ., 1ος ~387 τ.μ.., Έτος κατασκευής: 1984. Διαθέτει 3 προσόψεις και 6 θέσεις στάθμευσης εντός οικοπέδου (δυνατότητα για περισσότερες)., Υποδομές/Διαρρύθμιση: Διαμπερές, με δυνατότητα εγκατάστασης ανελκυστήρα σε όλους τους ορόφους., Κεντρικός πυρήνας κλιμακοστασίου σε συνδυασμό με τις 3 προσόψεις, προσφέρει ευελιξία διαμερισματοποίησης σε πολλαπλές ενότητες/διαμερίσματα., Ισχυρό μισθωτικό προφίλ, κατάλληλο για εισοδηματική εκμετάλλευση, Τιμή: 2.150.000€ Rokanas Real Estate, Δείτε περισότερες φωτογραφίες και ακίνητα στο www.rokanas.eu, Τηλέφωνο Επικοινωνίας: 2109614336
 

Χάρτης

 

Στατιστικά Ακινήτου

Δημοσίευση Ακινήτου: 21 Νοε, 2025
Τελευταία ενημέρωση: 21 Νοε, 2025
 
(Προς Πώληση) Επαγγελματικός Χώρος Λοιπές κατηγορίες || Αθήνα Νότια/Άγιος Δημήτριος - 1.160 τ.μ, 2.150.000€



Χαρακτηριστικά

Έτος Κατασκευής: 1984 Τ.μ. Οικοπέδου: 567 Θέα: Κατάσταση: Parkings: 6 Θέρμανση: Επίπεδα: 3
Περιοχή: Άγιος Δημήτριος (Δ. Αγ. Δημητρίου) Υποπεριοχή: Εθνικής Αντιστάσεως
Κατηγορία: Επαγγελματικά Τύπος: Λοιπές κατηγορίες
Τιμή: 2.150.000€ Εμβαδόν m2: 1160
Τιμή/τ.μ. 1.853€ Γραφεία:
Μπάνια: Όροφος: Ισόγειο
Κωδικός: 68651 e-agentsID: 1861928

Επιπλέον Χαρακτηριστικά

Διαμπερές Γωνιακό Ράμπα Εκφόρτωσης Metro
 

Περιγραφή

Προς Πώληση Λοιπές κατηγορίες, Άγιος Δημήτριος, Εθνικής Αντιστάσεως, 1.160 τ.μ., Ισόγειο: 387 τ.μ., Υπόγειο: 387 τ.μ., Σε οικόπεδο 567 τ.μ., 3 Επίπεδο/α, Ισόγειο Όροφος, 6 parking, Έτος κατασκευής: 1984, Ενεργειακό Πιστοποιητικό: Δεν απαιτείται , Χαρακτηριστικά: Ράμπα Εκφόρτωσης, Metro, Επενδυτικό, Διαμπερές, Γωνιακό, Πώληση Κτιρίου Επαγγελματικών Χώρων 1.160 τ.μ. — Άγιος Δημήτριος, Γωνιακό, διαμπερές κτίριο επαγγελματικών χώρων συνολικής επιφάνειας 1.160 τ.μ. σε οικόπεδο 567 τ.μ.. Αποτελείται από 3 επίπεδα, Ημιυπόγειο ~387 τ.μ. (λόγω κλίσης οικοπέδου έχει πρόσβαση ισογείου), Ισόγειο ~387 τ.μ., 1ος ~387 τ.μ.., Έτος κατασκευής: 1984. Διαθέτει 3 προσόψεις και 6 θέσεις στάθμευσης εντός οικοπέδου (δυνατότητα για περισσότερες)., Υποδομές/Διαρρύθμιση: Διαμπερές, με δυνατότητα εγκατάστασης ανελκυστήρα σε όλους τους ορόφους., Κεντρικός πυρήνας κλιμακοστασίου σε συνδυασμό με τις 3 προσόψεις, προσφέρει ευελιξία διαμερισματοποίησης σε πολλαπλές ενότητες/διαμερίσματα., Ισχυρό μισθωτικό προφίλ, κατάλληλο για εισοδηματική εκμετάλλευση, Τιμή: 2.150.000€ Rokanas Real Estate, Δείτε περισότερες φωτογραφίες και ακίνητα στο www.rokanas.eu, Τηλέφωνο Επικοινωνίας: 2109614336

Στατιστικά Ακινήτου

Δημοσίευση Ακινήτου: 21 Νοε, 2025
Τελευταία ενημέρωση: 21 Νοε, 2025

Loading...