(Προς Πώληση) Κατοικία Μεζονέτα || Αθήνα Νότια/Παλαιό Φάληρο - 133 τ.μ, 4 Υ/Δ, 638.400€

Χαρακτηριστικά

Περιοχή: Παλαιό Φάληρο (Δ. Παλ. Φαλήρου)
Υποπεριοχή: Αμφιθέα
Τιμή: 638.400€
Εμβαδόν m2: 133
Κατηγορία: Κατοικίες
Τύπος: Μεζονέτα
Κατάσταση: Καταπληκτική
Τιμή/τ.μ.: 4.800€
Υ/Δ: 4
Μπάνια: 2
Όροφος: 4ος
Έτος Κατασκευής: 2025
Τ.μ. Οικοπέδου:
Θέα:
Parkings 1
Θέρμανση: Αυτόνομη
Επίπεδα: 2
Κωδικός 1859945
 

Επιπλέον Χαρακτηριστικά

Αποθήκη Κλιματισμός Διαμπερές Προσόψεως Γωνιακό Ηλιακός Πόρτα Ασφαλείας Νεόδμητο Συναγερμός Βεράντες Εσωτερική Σκάλα Φωτεινό Κήπος Πολυτελές Ασανσέρ Θυροτηλεόραση Διπλά Τζάμια
 

Περιγραφή

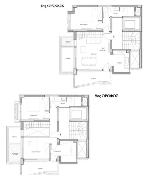
Παλαιό Φάληρο, Αμφιθέα, Προς Πώληση, Κατάσταση: ΄Αριστη κατάσταση, Μεζονέτα, 2 Επίπεδο/α, 133 τ.μ., 4ος Όροφος, Έτος κατασκευής: 2025, 4 Υ/Δ, 2 Μπάνιο/α, Αυτόνομη - Αντλία Θερμότητας Θέρμανση, Ενδοδαπέδια, Κλιματισμός, Ηλιακός, 1 Κουζίνα/ες, Νεόδμητο, Πολυτελές, Διαμπερές, Προσόψεως, Φωτεινό, Γωνιακό, Ασανσέρ, Πόρτα Ασφαλείας, Συναγερμός, Θυροτηλεόραση, Αποθήκη, Εσωτερική Σκάλα, Διπλά Τζάμια, Βεράντες, Κήπος, Kουφώματα: Αλουμινίου, 1 parking, Ήσυχη περιοχή, κοντά σε μέσα μεταφόρας και κεντρικούς οδικούς άξονες., Βρίσκεται σε ήσυχη και προνομιούχα τοποθεσία, κοντά σε μέσα μαζικής μεταφοράς και με άμεση πρόσβαση σε κεντρικούς οδικούς άξονες., Διαθέτει 4 υπνοδωμάτια,2 μπάνια, άνετο σαλόνι, τραπεζαρία και λειτουργική κουζίνα, εσωτερική σκάλα, 4 φωτεινούς εξώστες, 2 φυτεμένα δώματα, (ένα σε κάθε όροφο) με όμορφη θέα και απόλυτη ιδιωτικότητα. Η κουζίνα και τα μπάνια είναι εξοπλισμένα με πάγκους Corian υψηλής αισθητικής και αντοχής., Η κατοικία παραδίδεται μη επιπλωμένη, με προγραμματισμένη παράδοση τον Φεβρουάριο του 2026., Ενεργειακό Πιστοποιητικό: Α, Τιμή: 638.400€ Rokanas Real Estate, Δείτε περισότερες φωτογραφίες και ακίνητα στο www.rokanas.eu, Τηλέφωνο Επικοινωνίας: 2109614336
 

Χάρτης

 

Στατιστικά Ακινήτου

Δημοσίευση Ακινήτου: 12 Νοε, 2025
Τελευταία ενημέρωση: 13 Νοε, 2025
 

Δείτε ακόμα

Αμφιθέα - Μεζονέτα

133m2

  • 4
  • 2
  • 1
(Προς Πώληση) Κατοικία Μεζονέτα || Αθήνα Νότια/Παλαιό Φάληρο - 133 τ.μ, 4 Υ/Δ, 638.400€



Χαρακτηριστικά

Έτος Κατασκευής: 2025 Τ.μ. Οικοπέδου: Θέα: Κατάσταση: Καταπληκτική Parkings: 1 Θέρμανση: Αυτόνομη Επίπεδα: 2
Περιοχή: Παλαιό Φάληρο (Δ. Παλ. Φαλήρου) Υποπεριοχή: Αμφιθέα
Κατηγορία: Κατοικίες Τύπος: Μεζονέτα
Τιμή: 638.400€ Εμβαδόν m2: 133
Τιμή/τ.μ. 4.800€ Υ/Δ: 4
Μπάνια: 2 Όροφος: 4ος
Κωδικός: 68567 e-agentsID: 1859945

Επιπλέον Χαρακτηριστικά

Αποθήκη Κλιματισμός Διαμπερές Προσόψεως Γωνιακό Ηλιακός Πόρτα Ασφαλείας Νεόδμητο Συναγερμός Βεράντες Εσωτερική Σκάλα Φωτεινό Κήπος Πολυτελές Ασανσέρ Θυροτηλεόραση Διπλά Τζάμια
 

Περιγραφή

Παλαιό Φάληρο, Αμφιθέα, Προς Πώληση, Κατάσταση: ΄Αριστη κατάσταση, Μεζονέτα, 2 Επίπεδο/α, 133 τ.μ., 4ος Όροφος, Έτος κατασκευής: 2025, 4 Υ/Δ, 2 Μπάνιο/α, Αυτόνομη - Αντλία Θερμότητας Θέρμανση, Ενδοδαπέδια, Κλιματισμός, Ηλιακός, 1 Κουζίνα/ες, Νεόδμητο, Πολυτελές, Διαμπερές, Προσόψεως, Φωτεινό, Γωνιακό, Ασανσέρ, Πόρτα Ασφαλείας, Συναγερμός, Θυροτηλεόραση, Αποθήκη, Εσωτερική Σκάλα, Διπλά Τζάμια, Βεράντες, Κήπος, Kουφώματα: Αλουμινίου, 1 parking, Ήσυχη περιοχή, κοντά σε μέσα μεταφόρας και κεντρικούς οδικούς άξονες., Βρίσκεται σε ήσυχη και προνομιούχα τοποθεσία, κοντά σε μέσα μαζικής μεταφοράς και με άμεση πρόσβαση σε κεντρικούς οδικούς άξονες., Διαθέτει 4 υπνοδωμάτια,2 μπάνια, άνετο σαλόνι, τραπεζαρία και λειτουργική κουζίνα, εσωτερική σκάλα, 4 φωτεινούς εξώστες, 2 φυτεμένα δώματα, (ένα σε κάθε όροφο) με όμορφη θέα και απόλυτη ιδιωτικότητα. Η κουζίνα και τα μπάνια είναι εξοπλισμένα με πάγκους Corian υψηλής αισθητικής και αντοχής., Η κατοικία παραδίδεται μη επιπλωμένη, με προγραμματισμένη παράδοση τον Φεβρουάριο του 2026., Ενεργειακό Πιστοποιητικό: Α, Τιμή: 638.400€ Rokanas Real Estate, Δείτε περισότερες φωτογραφίες και ακίνητα στο www.rokanas.eu, Τηλέφωνο Επικοινωνίας: 2109614336

Στατιστικά Ακινήτου

Δημοσίευση Ακινήτου: 12 Νοε, 2025
Τελευταία ενημέρωση: 13 Νοε, 2025

Loading...