(Προς Πώληση) Λοιπά Ακίνητα Πολυκατοικία || Αθήνα Κέντρο/Βύρωνας - 450 τ.μ, 720.000€

Χαρακτηριστικά

Περιοχή: Βύρωνας (Δ. Αθηναίων)
Υποπεριοχή:
Τιμή: 720.000€
Εμβαδόν m2: 450
Κατηγορία: Άλλα Ακίνητα
Τύπος: Πολυκατοικία
Κατάσταση:
Τιμή/τ.μ.: 1.600€
Υ/Δ:
Μπάνια:
Όροφος: Ισόγειο
Έτος Κατασκευής: 1990
Τ.μ. Οικοπέδου:
Θέα:
Parkings
Θέρμανση: Κεντρική
Επίπεδα: 2
Κωδικός 1854836
 

Επιπλέον Χαρακτηριστικά

Χωρίς Κοινόχρηστα Διαμπερές Προσόψεως Γωνιακό Εσωτερική Σκάλα Φωτεινό
 

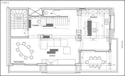
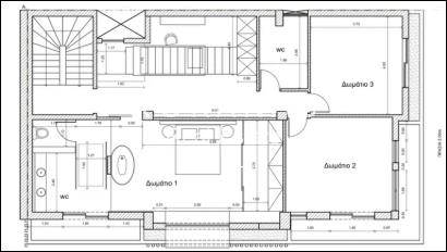
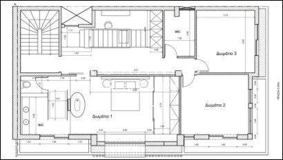
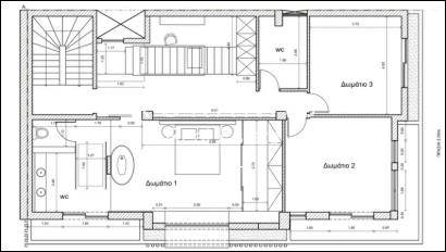
Περιγραφή

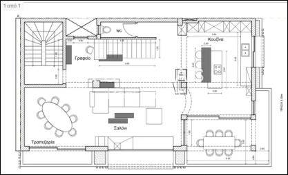
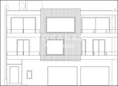
Προς Πώληση Πολυκατοικία, Βύρωνας450 τ.μ., 2 Επίπεδο/α, Ισόγειο Όροφος, 3 Μπάνιο/α, Kουφώματα: Ξύλινα, Έτος κατασκευής: 1990, Ενεργειακό Πιστοποιητικό: Ζ, Χαρακτηριστικά: Εσωτερική Σκάλα, Χωρίς Κοινόχρηστα, Επενδυτικό, Διαμπερές, Προσόψεως, Φωτεινό, Γωνιακό, Επι Λεωφόρου, ΠΩΛΕΙΤΑΙ ΑΚΙΝΗΤΟ 400 τ.μ. ΥΠΟ ΑΝΑΚΑΙΝΙΣΗ ΜΕ ΘΕΑ ΛΥΚΑΒΗΤΤΟ & ΑΚΡΟΠΟΛΗ – ΝΕΑ ΕΛΒΕΤΙΑ, ΒΥΡΩΝΑΣ, ο ακίνητο αναπτύσσεται σε τρία επίπεδα των 133 τ.μ. έκαστο. Στο ισόγειο έχει ήδη πραγματοποιηθεί αλλαγή χρήσης σε κατάστημα, γεγονός που το καθιστά, ιδανικό για μεικτή χρήση (επαγγελματική & κατοικία) ή αξιοποίηση ως επενδυτικό ακίνητο, Κύρια χαρακτηριστικά: • Σύνολο 400 τ.μ. σε 3 ορόφους • Θέα προς Λυκαβηττό και Ακρόπολη • Ισόγειο με αλλαγή χρήσης σε επαγγελματικό χώρο •, Υπό ανακαίνιση, με πολλές δυνατότητες διαμόρφωσης • Κατάλληλο για κατασκευή έως και 6 διαμερισμάτων • Πολύ κοντά σε στάσεις ΜΜΜ, σχολεία, αγορά και πάρκα • Ήσυχη και περιζήτητη γειτονιά, Κεντρική Θέρμανση, Κοντά σε: κεντρική αγορά, Τιμή: 720.000€ Rokanas Real Estate, Δείτε περισότερες φωτογραφίες και ακίνητα στο www.rokanas.eu, Τηλέφωνο Επικοινωνίας: 2109614336
 

Χάρτης

 

Σημεία Ενδιαφέροντος

Κοντά σε: κεντρική αγορά
 

Στατιστικά Ακινήτου

Δημοσίευση Ακινήτου: 20 Οκτ, 2025
Τελευταία ενημέρωση: 10 Νοε, 2025
 
(Προς Πώληση) Λοιπά Ακίνητα Πολυκατοικία || Αθήνα Κέντρο/Βύρωνας - 450 τ.μ, 720.000€



Χαρακτηριστικά

Έτος Κατασκευής: 1990 Τ.μ. Οικοπέδου: Θέα: Κατάσταση: Parkings: Θέρμανση: Κεντρική Επίπεδα: 2 Κοντά σε: κεντρική αγορά
Περιοχή: Βύρωνας (Δ. Αθηναίων) Υποπεριοχή:
Κατηγορία: Άλλα Ακίνητα Τύπος: Πολυκατοικία
Τιμή: 720.000€ Εμβαδόν m2: 450
Τιμή/τ.μ. 1.600€ Υ/Δ:
Μπάνια: Όροφος: Ισόγειο
Κωδικός: 68248 e-agentsID: 1854836

Επιπλέον Χαρακτηριστικά

Χωρίς Κοινόχρηστα Διαμπερές Προσόψεως Γωνιακό Εσωτερική Σκάλα Φωτεινό
 

Περιγραφή

Προς Πώληση Πολυκατοικία, Βύρωνας450 τ.μ., 2 Επίπεδο/α, Ισόγειο Όροφος, 3 Μπάνιο/α, Kουφώματα: Ξύλινα, Έτος κατασκευής: 1990, Ενεργειακό Πιστοποιητικό: Ζ, Χαρακτηριστικά: Εσωτερική Σκάλα, Χωρίς Κοινόχρηστα, Επενδυτικό, Διαμπερές, Προσόψεως, Φωτεινό, Γωνιακό, Επι Λεωφόρου, ΠΩΛΕΙΤΑΙ ΑΚΙΝΗΤΟ 400 τ.μ. ΥΠΟ ΑΝΑΚΑΙΝΙΣΗ ΜΕ ΘΕΑ ΛΥΚΑΒΗΤΤΟ & ΑΚΡΟΠΟΛΗ – ΝΕΑ ΕΛΒΕΤΙΑ, ΒΥΡΩΝΑΣ, ο ακίνητο αναπτύσσεται σε τρία επίπεδα των 133 τ.μ. έκαστο. Στο ισόγειο έχει ήδη πραγματοποιηθεί αλλαγή χρήσης σε κατάστημα, γεγονός που το καθιστά, ιδανικό για μεικτή χρήση (επαγγελματική & κατοικία) ή αξιοποίηση ως επενδυτικό ακίνητο, Κύρια χαρακτηριστικά: • Σύνολο 400 τ.μ. σε 3 ορόφους • Θέα προς Λυκαβηττό και Ακρόπολη • Ισόγειο με αλλαγή χρήσης σε επαγγελματικό χώρο •, Υπό ανακαίνιση, με πολλές δυνατότητες διαμόρφωσης • Κατάλληλο για κατασκευή έως και 6 διαμερισμάτων • Πολύ κοντά σε στάσεις ΜΜΜ, σχολεία, αγορά και πάρκα • Ήσυχη και περιζήτητη γειτονιά, Κεντρική Θέρμανση, Κοντά σε: κεντρική αγορά, Τιμή: 720.000€ Rokanas Real Estate, Δείτε περισότερες φωτογραφίες και ακίνητα στο www.rokanas.eu, Τηλέφωνο Επικοινωνίας: 2109614336

Στατιστικά Ακινήτου

Δημοσίευση Ακινήτου: 20 Οκτ, 2025
Τελευταία ενημέρωση: 10 Νοε, 2025

Loading...