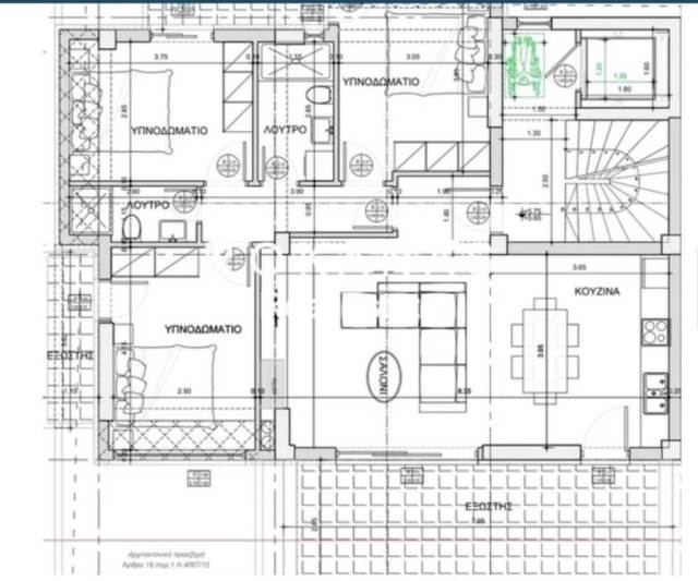
Άλιμος, Εφοριακών, Προς Πώληση, Κατάσταση: υπό κατασκευή, Διαμέρισμα, 101 τ.μ., 4ος Όροφος, Έτος κατασκευής: 2025, 3 Υ/Δ, 2 Μπάνιο/α, Αυτόνομη - Αντλία Θερμότητας Θέρμανση, Κλιματισμός, Ηλιακός, 1 Κουζίνα/ες, Νεόδμητο, Πολυτελές, Διαμπερές, Προσόψεως, Φωτεινό, Ασανσέρ, Πόρτα Ασφαλείας, Συναγερμός, Θυροτηλεόραση, Αποθήκη, Τζάκι, Internet, Διπλά Τζάμια, Βεράντες, Επιτρέπονται Κατοικίδια, Κήπος, Kουφώματα: Αλουμινίου, 1 parking, Το διαμέρισμα θα ολοκληρωθεί τον Σεπτέμβριο του 2026., Το διαμέρισμα περιλαμβάνει ενιαίο σαλόνι με ενεργειακό τζάκι, τραπεζαρία και μοντέρνα κουζίνα, 3 υπνοδωμάτια, 2 μπάνια και 3 μπαλκόνια, Η κατασκευή είναι σε μια ήσυχη γειτονιά του Αλίμου με κοινόχρηστους χώρους πρασίνου, δίπλα σε σχολεία, γυμναστήριο, ο, πλατεία και στην αγορά, με εύκολη πρόσβαση προς όλες τις κεντρικές οδικές αρτηρίες. Βρίσκεται σε κοντινή, απόσταση από το μετρό (600μ.) Έχει εξαιρετική θέα., Χαρακτηριστικά: Αντλία θερμότητας με fan coil σε όλους τους χώρους για αυτόνομή Ψύξη-θέρμανση, προεγκατάσταση συστήματος, ΚΝΧ Smart Home, θερμοπρόσοψη 10 cm, δάπεδα από ξύλο ή πλακάκι, ενεργειακό τζάκι, ενεργειακά κουφώματα αλουμινίου, διπλά τζάμια με θερμοδιακοπή, πόρτα ασφαλείας, θυροτηλεόραση,, προεγκατάσταση ηλιακού θερμοσίφωνα, προεγκατάσταση συναγερμού, φωτεινό, θέση πάρκιν υπογείου & αποθήκη 10 τ. μ., Θέα: Καλή, Ενεργειακό Πιστοποιητικό: Α++, Τιμή: 510.000€ Rokanas Real Estate, Δείτε περισότερες φωτογραφίες και ακίνητα στο www.rokanas.eu, Τηλέφωνο Επικοινωνίας: 2109614336